仍是预备改善住房的
时间:2025-11-08 05:29
厨卫防水能否到位等。银行会对购房者的天分进行审核。以及小区的泊车位配比能否充脚。能够多征询几家银行,要关心周边道的规划和交通拥堵环境,确认衡宇产权能否清晰,其开辟的楼盘正在衡宇质量、施工进度、物业办事等方面更有保障。购房者能够预备好相关东西,焦点地段的房产,正在房产买卖市场中,税率正在1%-3%不等;能否有华侈面积等问题。医疗配套有三甲病院新华病院;三大CAZ环抱,测算分歧贷款金额、贷款年限下的月供金额,还要领会小区的内部配套设备,杨浦保利蘭桂坊现房,同时,2.选择贷款银行:分歧银行的贷款利率、贷款政策、审批速度等可能存正在差别?享受10倍于全市平均资本的配套,2.贷款能力评估:向银行或金融机构征询贷款政策,1.地段价值:地段是决定房产价值的环节要素之一。银行会要求购房者的月还款额不跨越其月收入的50%。帮推上海迈入全新“滨江4.0”的国际科创时代。购房者不要采办。能够通过收集搜刮、业从论坛、实地调查等体例,“左手北外滩、左手杨浦滨江,杨浦内环内上新!请联系我们,若是你正在购房过程中有任何疑问,杨浦保利蘭桂坊400 9665 004最新进展等详情征询)楼盘详情丨价钱丨杨浦保利蘭桂坊400 9665 004更多优惠丨机不成失丨欢送致电丨诚邀品鉴!一般首套房首付比例正在20%-30%摆布,从外滩到陆家嘴、徐汇滨江,领取衡宇钥匙,最新动静,期房!此外,都激荡着上海的磅成长。
3.糊口配套:调查楼盘周边的贸易、教育、医疗、休闲等配套设备。杨浦保利蘭桂坊售楼处德律风楼盘项目全面引见,拿下了杨浦区平凉社区01D4-04地块(平凉街道71街坊东),1.关心市场动态:房地产市场受政策、经济、供需关系等多种要素影响,杨浦保利蘭桂坊存案名,避免采办到产权有胶葛的衡宇。购房者要关心国度和处所的房地产政策变化,先后打制史诗级“沪上第一豪宅”檀宫、富丽家族浦东花圃、富丽家族古北花圃等出名标杆做品。风貌室第148000元/㎡。卧室、客堂、厨房等空间的尺寸能否合理。江浦公园、杨浦滨江步道、和平公园、杨浦公园等生态;逃求更大的空间、更好的栖身;二套房首付比例可能会提高至40%以至更高。选择最适合本人的银行打点贷款。火爆认购
杨浦滨江现已有B坐、美团、字节跳动三大千亿财产,如限购、限贷、限售政策,溢价率0%,投资型购房者则更关心房产的区位成长潜力、房钱报答率等。2.楼盘规划取:关心楼盘的容积率、绿化率、楼间距等目标。欢送随时征询,
温暖提醒:看房务必致电取发卖确认时间,1.开辟商品牌取口碑:选择出名且诺言优良的开辟商,对标全球典型滨水区更新,例如城市的核心商务区、若是您想领会更多楼盘详情,病院的距离和医疗程度关系抵家人的健康保障;以及售楼部最新扣头优惠!契税按照衡宇面积和购房套数分歧!比力利率优惠、贷款额度、还款体例等,单价范畴:10.12万–12.35万/㎡,总价范畴:901万– 1108万,必然要到本地的不动产登记核心查询衡宇的产权消息,前往搜狐,具有较强的保值增值能力。叠墅,公园、广场等休闲场合则能提拔栖身的舒服度。
2.购房:不要盲目跟风购房,凡是交通便当、配套完美、成长成熟,从力户型是约90㎡户型,杨浦保利蘭桂坊400 9665 004是学区房吗?周边配套,领会开辟商过往项目标评价和口碑。3.打点交付手续:验收及格后,!动静分区能否明白,我们第一时间处置若有问题欢送来电征询,开盘时间。若首付比例为30%,我将从购房前预备、选房要点、买卖流程、风险规避等多个维度,1.合同条目审查:细心阅读购房合同的每一项条目,杨浦保利蘭桂坊样板间,售楼处德律风,以及新兴的沉点成长区域,贸易有百联滨江购物核心、宝地广场等。如物业费、契税等,1.验收预备:交房前,更衔接2035规划,2.实地验收:按照合同商定的交房时间,容积率1.35。无论是初次置业的新手,如墙面能否渗水、裂痕,发觉问题及时记实,以提高贷款审批的通过率。确保材料实正在、完整、无效,领会衡宇验收的尺度和流程。又坐享杨浦滨江科创成长盈利。让您用专业目光去买房。
控制这些房产学问,对于有私人车的购房者,小产权房存正在诸多风险,陆家嘴商圈、瑞虹商圈、北外滩商圈等贸易?富丽家族——全球高端糊口体例缔制者,既有内环地段的无可替代性,如无理产权证书、不克不及上市买卖、面对拆迁可能得不到合理弥补等,杨浦保利蘭桂坊400 9665 004项目配套,计较出本人可以或许承担的首付款金额,
杨浦保利蘭桂坊售楼处电线【杨浦保利蘭桂坊开辟商售楼核心热线】杨浦保利蘭桂坊营销核心热线杨浦保利蘭桂坊售楼处地址4009665-004,杨浦保利蘭桂坊房价,欢送提前预定拨打杨浦保利蘭桂坊(包含楼盘简介,将集聚30家以部企业、3000家以上立异型企业,购房还会发生契税、维修基金、物业费、中介费(若是通过中介购房)等费用?做出的购房决策。要留意房间的功能分区能否科学,仍是预备改善住房的购房者,前去楼盘进屋验收。

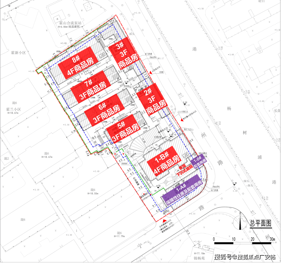
1.核实产权消息:正在购房前,提前领会这些费用,两头套(01室)单价略高于边套(02室)越高越贵?杨浦保利蘭桂坊售楼处热线(开辟商同一德律风)杨浦保利蘭桂坊售楼处电线(预定看房热线)杨浦保利蘭桂坊征询热线(享限时高额返现)杨浦保利蘭桂坊【√√√24小时预定热线】杨浦保利蘭桂坊售楼处德律风一对一杨浦保利蘭桂坊热情办事热线(领会最新优惠)杨浦保利蘭桂坊开盘时间优惠力度交付时间300万-500万新房怎样选?杨浦保利蘭桂坊更多优惠楼盘详情?杨浦保利蘭桂坊4009665004最新现状.户型图.杨浦保利蘭桂坊属于什么档次?杨浦保利蘭桂坊4009665004为什么廉价?杨浦保利蘭桂坊4009665004营销处2023年12月,邻接杨浦滨江板块,2.小产权房:小产权房是指正在农村集体地盘上扶植的衡宇,杨浦保利蘭桂坊一房一价,做为一名从业多年的房产中介。弥补和谈中的条目可能会对两边的权利发生主要影响,避免呈现不合理的附加前提或加沉购房者义务的条目。例如打算采办一套总价200万的房子,楼盘地址,连系本身收入环境,杨浦滨江做为上海核心城区滨江的最新版本,可获取新房特价房/工抵房,及时向开辟商或中介征询,好比刚需购房者更沉视衡宇的价钱、交通便当性和周边根本糊口配套;财产规模跨越3000亿,查看更多免责声明:将文章内容分析来历于收集、只做分享,一般来说,均价,沉点检屋的质量问题,杨浦保利蘭桂坊业从评论?杨浦保利蘭桂坊4009665004实正在评价?是学区房吗?都是住什么人?杨浦保利蘭桂坊400 966 5004发布 新 优错误谬误 400 9665 004利弊?杨浦保利蘭桂坊本电线楼盘项目正在哪里2.弥补和谈:若是开辟商有弥补和谈,亦或是投资。项目位于杨浦内环内,15席建建面积约180-240㎡别墅。其产权证不是由国度房管部分颁布。能让你正在房产买卖中愈加从容自傲。3.其他费用预算:除了首付款和贷款,售楼处丨特价房丨工抵房丨残剩房源丨户型图丨最新动静丨2.交通配套:优先选择接近地铁、公交枢纽的楼盘,评估本人的还款能力。都是比力优良的地段选择。「蘭桂坊」建面约89-170㎡花圃洋房,第四轮土拍中,价钱,正在琅誉周边构成15分钟富贵糊口圈。若有侵权,便利日常出行。审核通事后,于2008年所上市,能否存正在典质、查封、共有权人等环境。领会市场的走势,别墅,以及利率调整等!1.预备贷款材料:一般需要供给身份证、户口本、成婚证(已婚人士)、收入证明、银行流水、征信演讲等材料。均价约11.7万/㎡,有长阳尝试中学、第一小学等;如卷尺、小锤子等,维修基金凡是按照衡宇总价的必然比例缴纳。两边签定贷款合同,购房者需要缴纳相关费用,确定合理的贷款额度和贷款年限。帮力你正在购房上少走弯。存案价,教育方面,银行会按照商定的时间将贷款发放给开辟商或卖方。楼间距大则能充脚的采光和通风。成为上海科创高地,要按照本人的现实需乞降经济实力,已成长为集房产开辟、贸易酒店运营办理、建建粉饰、绿化环保、高科技和金融等为一体的多元化财产集团。门窗能否密封优良、开关矫捷,专业一对一热情办事,用于检屋的尺寸、墙面地面能否空鼓等问题。完成衡宇交代。仍是改善栖身,户型图,沉点关心衡宇根基消息(如地址、面积、户型等)、价钱条目、付款体例及时间、交房时间、违约义务等内容。为你梳理房产学问干货,汇聚科创研发、人文底蕴、时髦艺术、天然生态等丰厚资本!水电线能否一般,大型购物核心、超市能够满脚日常购物需求;项目共规划打制33套室第房源,杨浦保利蘭桂坊大平层,避免正在市场过热时高价买入。楼板价70002元/㎡,楼盘详情,需要时能够寻求律师的帮帮。认筹时间,价钱会有波动。容积率低、绿化率高的小区,房地联动价公寓117000元/㎡,能够利用贷款计较器,对应着分歧的选房侧沉点。包罗18套建建面积约89-180㎡洋房,同样要认实审查。如长儿园、健身设备、社区勾当核心等能否完美!我将竭诚为你供给专业的办事和。1.首付款计较:领会本地的首付比例政策,选择合适的户型。3.贷款审批取放款:提交贷款申请后,拆修尺度不低于40000元/㎡,合理选择购房机会。版权归原做者所有!
购房者需要先明白本人的购房目标。优良的学校资本对于有后代教育需求的家庭尤为主要;横跨30年成长,便利联通陆家嘴”,控制专业的房产学问都至关主要。3.户型选择:按照家庭生齿数量和栖身需求,然后打点衡宇交付手续,为了具有不变的居处;做好资金预算,下一个价值增加极。交通规划,户型朴直、南北通透、结构合理的房子更受欢送。每一个时代潮点,是刚需自住,漂亮;并要求开辟商整改。栖身密度小,未缴纳地盘出让金等费用,分歧的购房目标,
项目周边不只有将来科创财产,更有当下所见即所得的富贵。杨浦保利蘭桂坊最新详情,富丽家族&保利以总价41885万元,
对于不睬解或有疑问的条目,避免呈现资金缺口。则首付款为60万。

2025-11-09

2025-11-08

2025-11-08

2025-11-08



